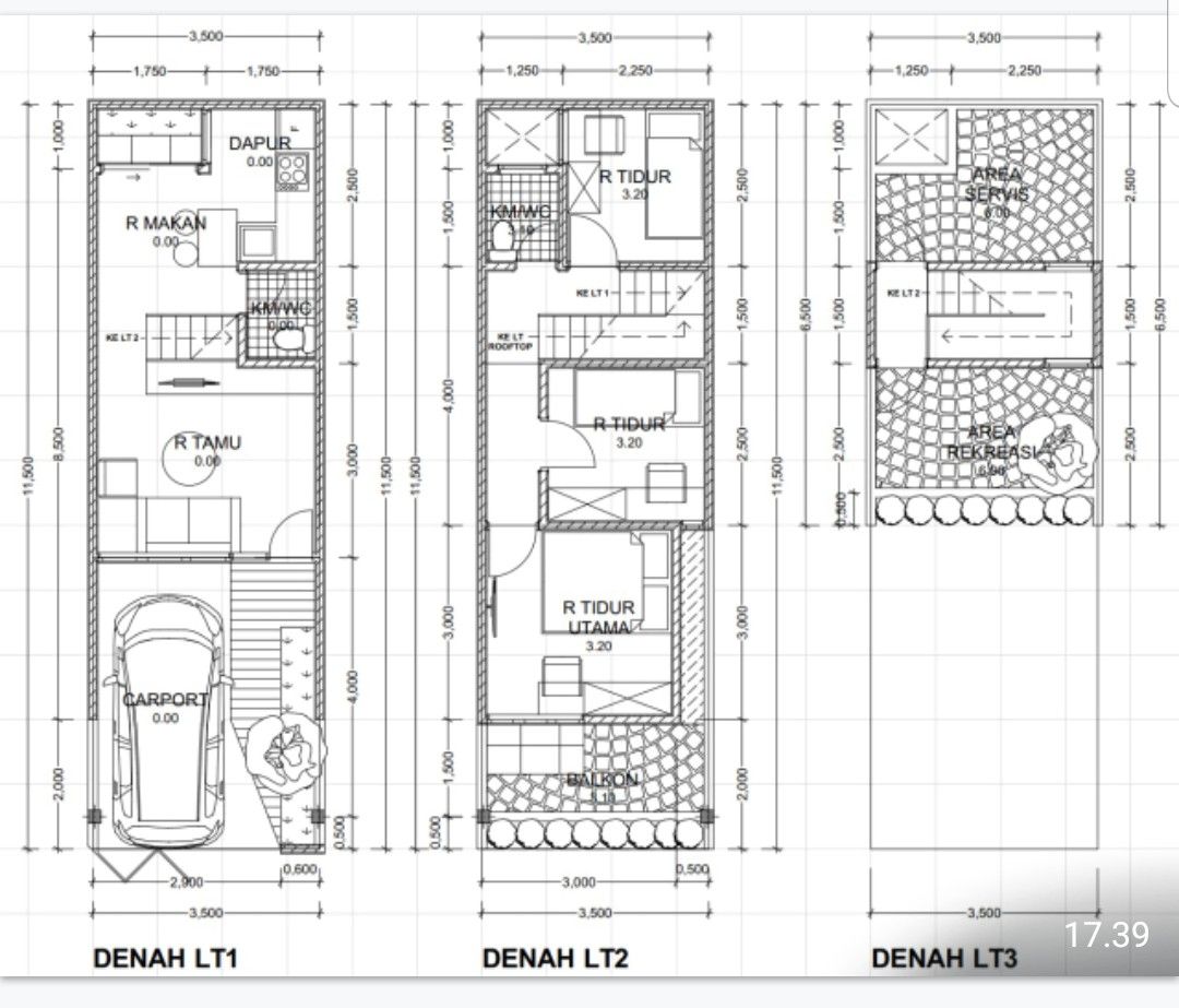
Bismillah R#1006 jkt PONDOK BAMBU HOUSE Rumah Baru di Pondok Bambu, Duren Sawit - Jakarta Timur Luas Tanah 41 m² Luas Bangunan 90 m² Ukuran Tanah 3,6m x 11,5m Bangunan 2,5 Lantai 3 Kamar Tidur 2 Kamar Mandi Dapur Rooftop Akses Jalan 1 mobil SHM IMB *AKSES LOKASI :* - 200m ke Jalan Raya Utama - 1,4km ke Cipinang Indah Mall - 1,7km ke Gerbang Tol Jatiwaringin 2 (Becakayu) - 2,7km ke Jalan Tol Jakarta - Cikampek - 3,7km dari Stasiun Klender - 5,8km ke Plaza Pondok Gede *HARGA Rp. 899 juta ↘️Detil info hubungi kami 🆁🆄🅼🅰🅷🅱🅴🆁🅺🅰🅷 Chat WA: https://wa.me/+6282126260938 Chat WA: https://wa.me/+6282282446868 www.rumahberkahprosyah.com https://g.page/rumahberkahprosyah #rumahberkahtoserbaproperti #rumahtanpadp #rumahsyariah #rumahhalal #rumahimpian #rumahhemat #rumahhebat #kavlinsyariah #rumahsyariah #propertisyariah #propertihalaltanpariba #propertymuslim #propertyhalal #propertiislami #rumahberkahprosyah
Tipe
Property
Rumah
Tipe
Dijual
Kamar Tidur
3
Kamar Mandi
2
Tanah
41 m2
Bangunan
90 m2
Garasi
1 Mobil
Kondisi
- Dimensi
- 3.6 m x 11.5 m
- Kamar Pembantu
- Pasokan Listrik
- 1300 Watt
- Properti Menghadap
- Barat
- Property ID
- P00001515765342022
- Sertifikat
- Hak Milik
Fasilitas Properti
- Pemandangan Taman
- Kamar Mandi
- Kitchen Set
- Balkon
- Kanopi
- Teras
- Teras Terbuka
- Petugas Security 24 Jam
- One-Gate System
- Permainan Anak
- Arena Bermain
- CCTV 24 Jam
Lokasi Properti
, ,
