Dijual Rumah Mewah di Komplek AL Pasar Minggu Jakarta Selatan
Selling Point :
- Security 24 Jam
- Akses Jalan 2 Mobil
- Lokasi Aman, Tenang dan Bebas Banjir
- 5 Menit Ke Tol Tb Simatupang
- Bangunan Full Bata Merah
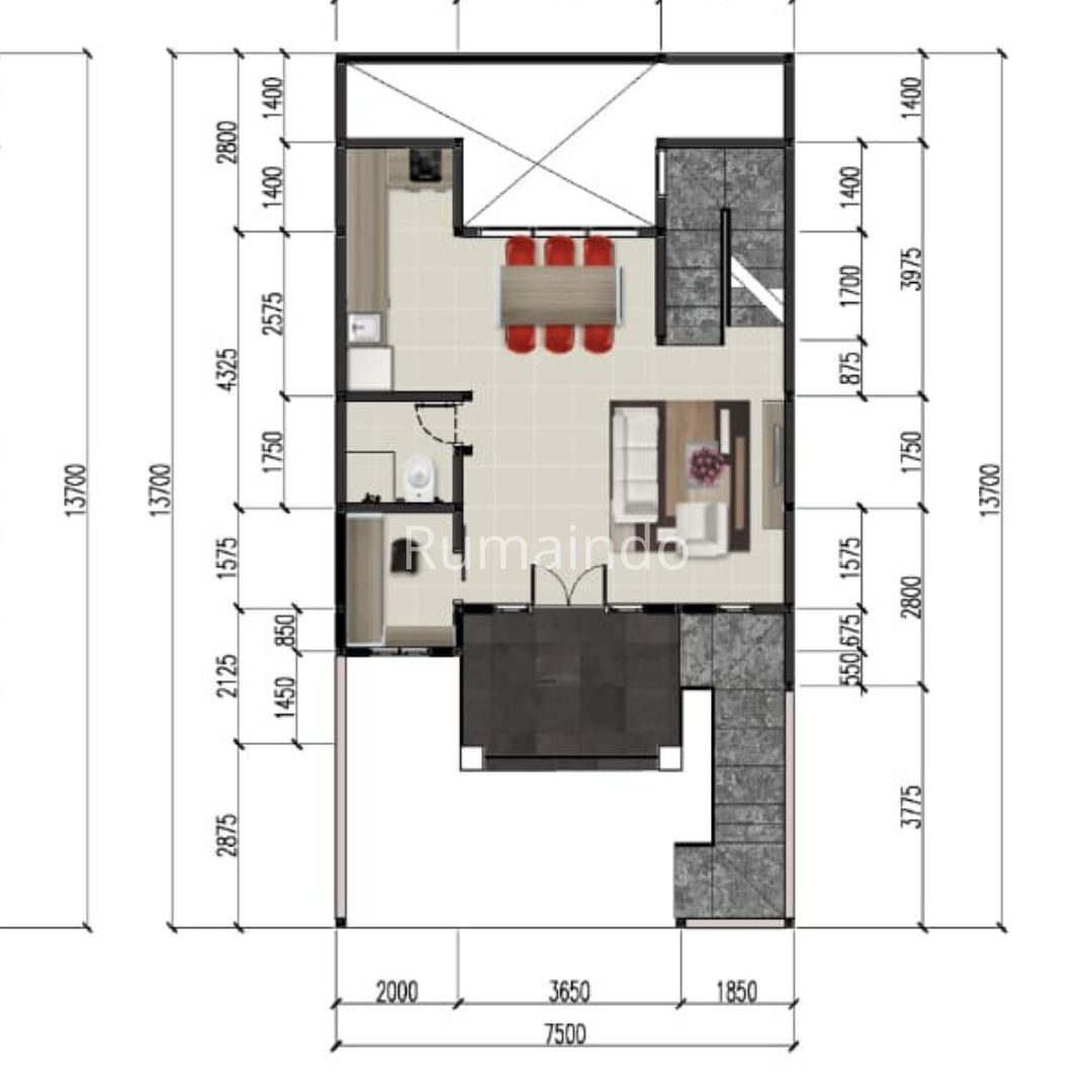
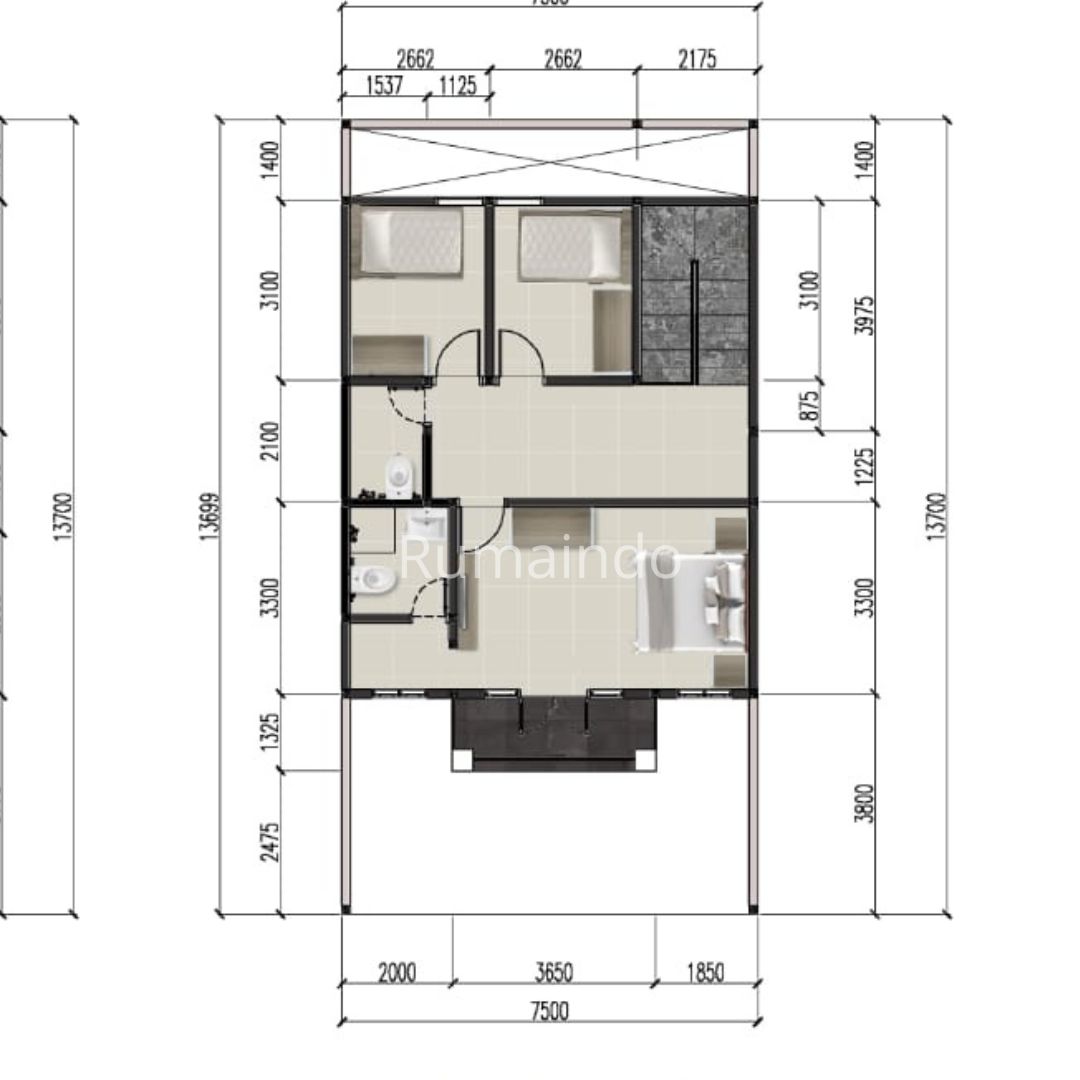
Rumah 3 Lantai
Luas Tanah 103 m2
Luas Bangunan 250 m2
Kamar Tidur 4+1
Kamar Mandi 3+1
Garasi 1 Mobil
Carport 2 Mobil
- Listrik 3.500 watt
- Bangunan Thn 2022 ( Sdg Tahap Proses Bangun)
- Kolam Renang Pribadi
- SHM, IMB, PBB
Harga 3,950 M Nego
Utk info hub :
Yudi Rumaindo
Tlp/WA
0858-8211-0307
Instagram @yudie_rumaindo
Tipe
Property
Rumah
Tipe
Dijual
Kamar Tidur
4
Kamar Mandi
4
Tanah
103 m2
Bangunan
250 m2
Garasi
2 Mobil
Kondisi
Tak Berperabot / Unfurnished
- Dimensi
- m x m
- Kamar Pembantu
- Pasokan Listrik
- 3500 Watt
- Properti Menghadap
- Property ID
- P00001438130582022
- Sertifikat
- Hak Milik
Fasilitas Properti
- Kamar Mandi
- Petugas Security 24 Jam
- One-Gate System
Lokasi Properti
, Jakarta Selatan, DKI Jakarta
